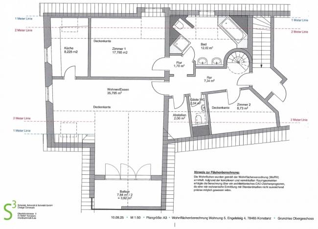
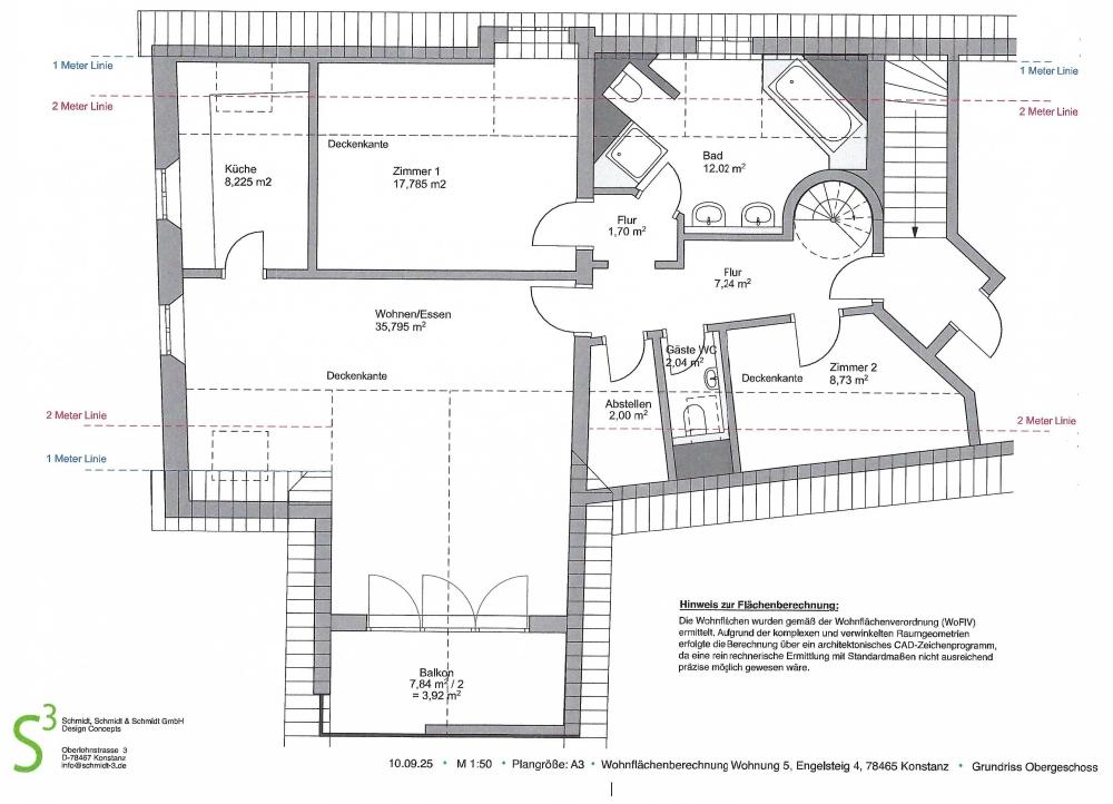
Die bezugsfreie 5,5-Zimmer-DG-Maisonette-Wohnung mit einer Wohnfläche (WoFIV) von 135,01 m² befindet sich im ersten und zweiten Dachgeschoss eines gepflegten Mehrfamilienhauses aus dem Jahr (ca.) 1900. Das Haus wurde 1990 kernsaniert. Die Wohnung überzeugt durch einen großen Wohn- Essbereich mit teilweiser lichter Raumhöhe bis unters Dach, vier separaten Zimmern, einer kleinen Galerie, einem Masterbad sowie einem zusätzlichen Duschbad und einem Gäste-WC. Eine separate Küche, Flur/Diele mit Garderobe, ein Abstellraum sowie der überdachte Westbalkon runden das komfortable Platzangebot weiter ab. Zur Wohnung gehört ein Garagenstellplatz (Doppelparker unten) direkt im Haus.
Das stilvolle Haus befindet sich im Herzen von Konstanz-Wollmatingen. Sämtliche Einkaufsmöglichkeiten für den täglichen Bedarf, Ärzte, Kita sowie die Grundschule liegen in unmittelbarer, fußläufiger Nähe. Die Anbindung an öffentliche Verkehrsmittel ist ebenso günstig gelegen. Das Stadtzentrum von Konstanz sowie das nächstgelegene Bodenseeufer können bequem mit dem Fahrrad oder den öffentlichen Verkehrsmitteln angefahren werden.
Die Wohnung befindet sich in einem gepflegten Allgemeinzustand. Bei den vorhandenen Bodenbelägen handelt es sich um einen Parkettboden im Wohn- und Essbereich sowie Teppichböden in den Zimmern und im Galeriebereich. Flur/Diele sowie Bäder, WC und Küche wurden praktisch gefliest. Das Hauptbad verfügt über einen Doppelwaschplatz, eine Badewanne sowie über eine Dusche. Ein weiteres Duschbad steht im zweiten Dachgeschoss zur Verfügung. Die vorhandene Einbauküche ist zwar schon in die Jahre gekommen, jedoch soweit funktionsfähig. Der Großteil der Fenster lässt sich durch manuelle Rollläden verdunkeln. Die Dachflächenfenster sind mit elektrischen Außenrollläden ausgestattet. Die Wohnung wird über eine Fußbodenheizung (Gas) mit Wärme versorgt.
Ein Verbrauchsausweis ist vorhanden
Hausgeld 456,00 €/mtl. (davon Rücklagen 93,60 €)
Bei erfolgreicher Vermittlung wird eine Käuferprovision in Höhe von 3,57 % der Kaufpreissumme inkl. der gesetzlichen MwSt. von derzeit 19% an uns fällig.

Michael Guske Immobilien
Höriweg 8
78479 Reichenau
Telefon: +49 7534 2719726
Mobil: +49 151 22970849
E-Mail: info@immobilien-guske.de