Direkt zum Inhalt
Hausansicht Doppelhaus
Hausansicht
Hauseingang
Treppenhaus
Wohnbeispiel Wohnung DG Wohnen/Essen
Wohnbeispiel Wohnung DG Wohnen/Essen (Ansicht)
Wohnbeispiel Wohnung DG Schlafzimmer
Wohnbeispiel Wohnung DG Badezimmer
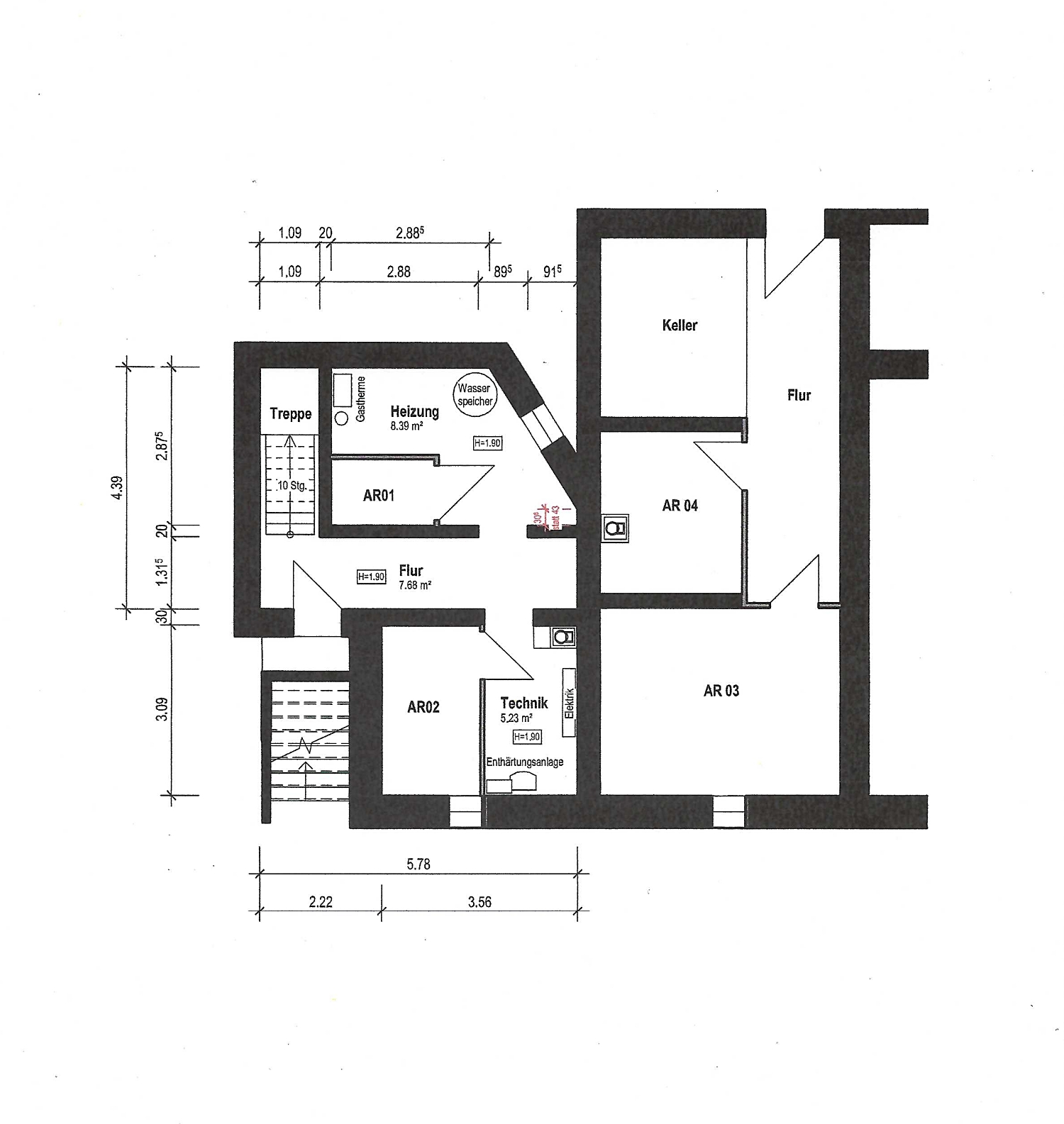
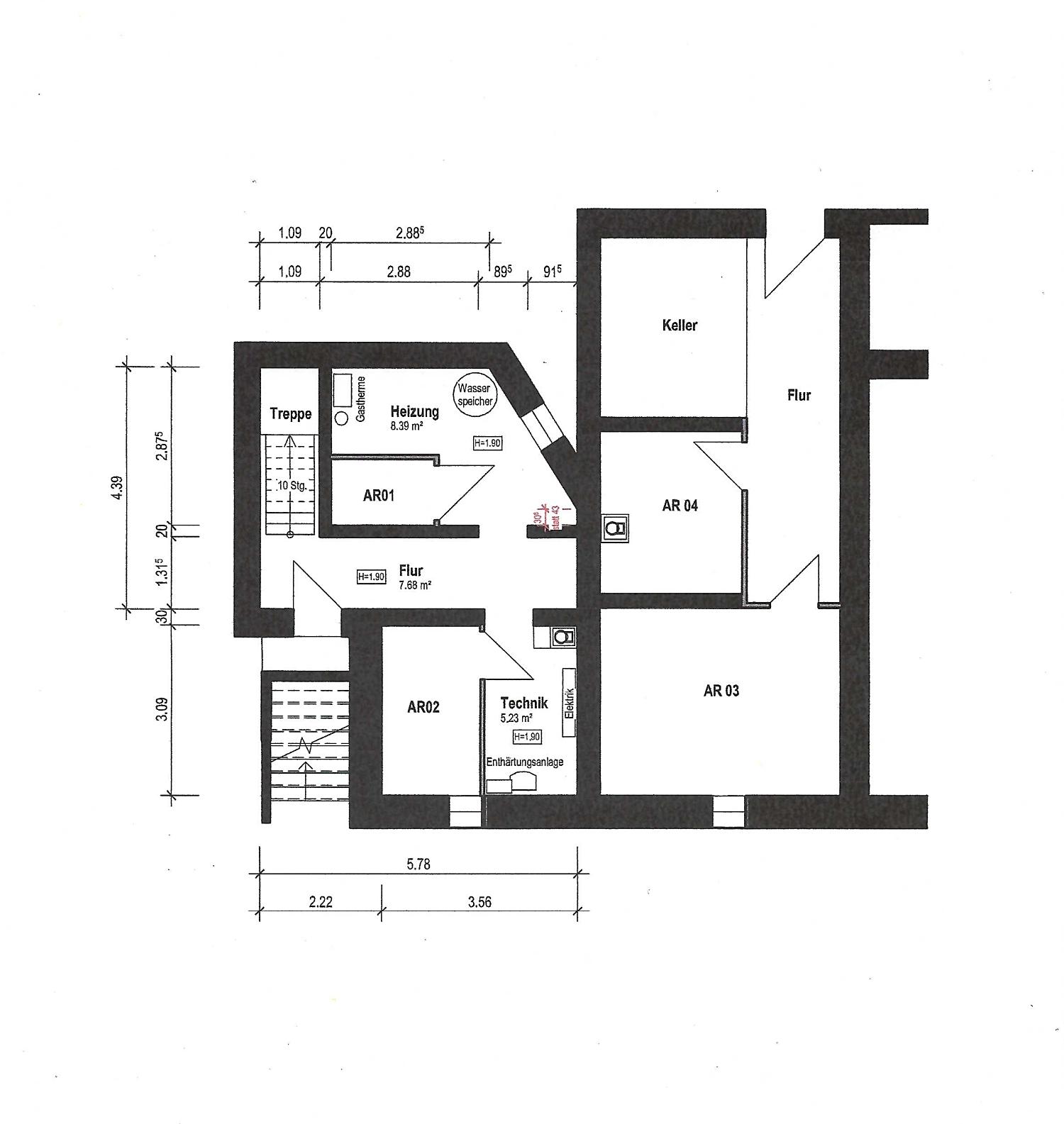
Grundriss Kellergeschoss
Grundriss Erdgeschoss
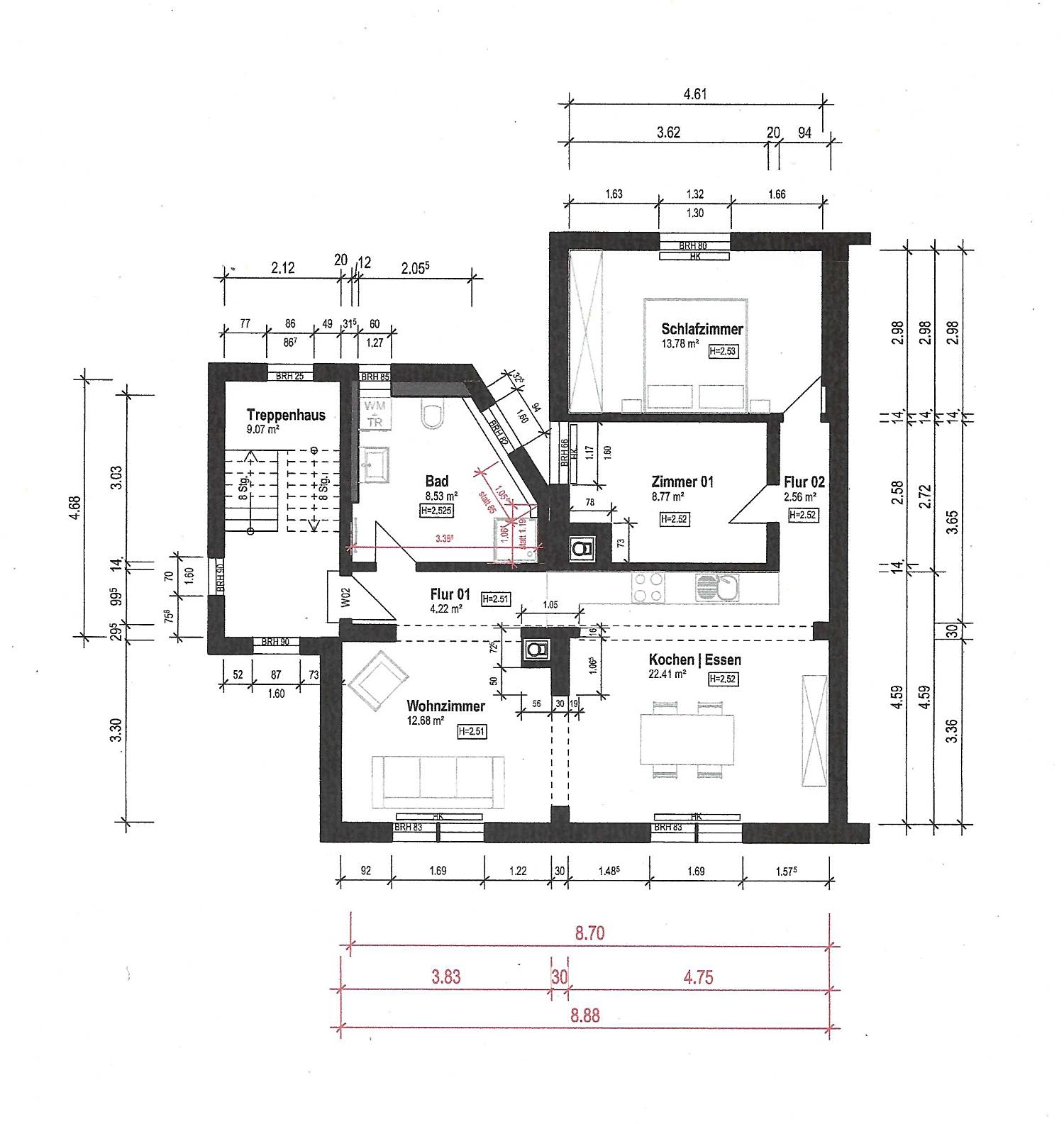
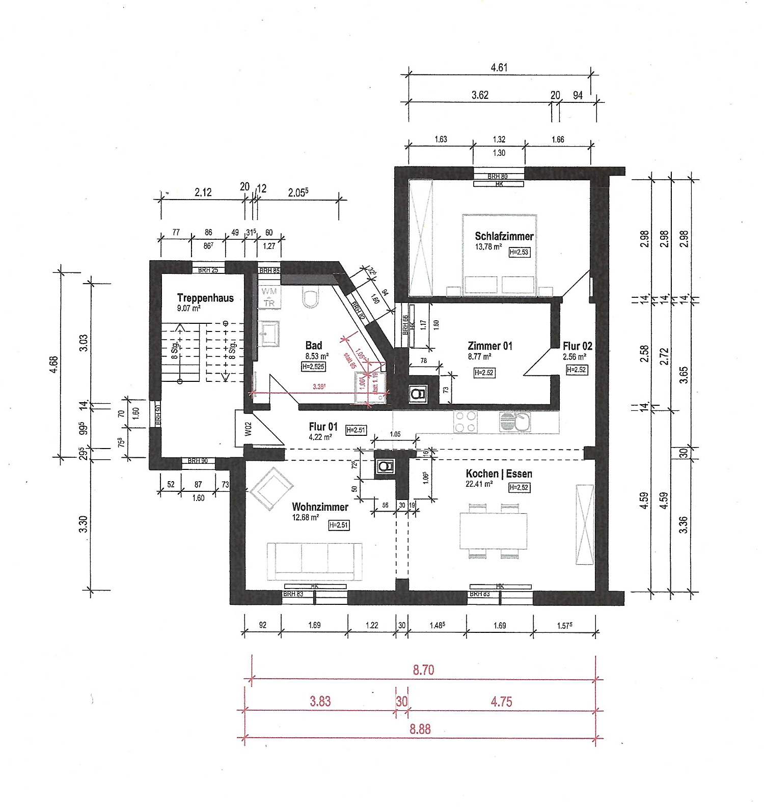
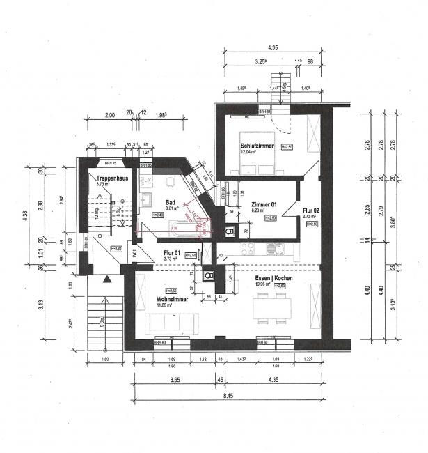
Grundriss Obergeschoss
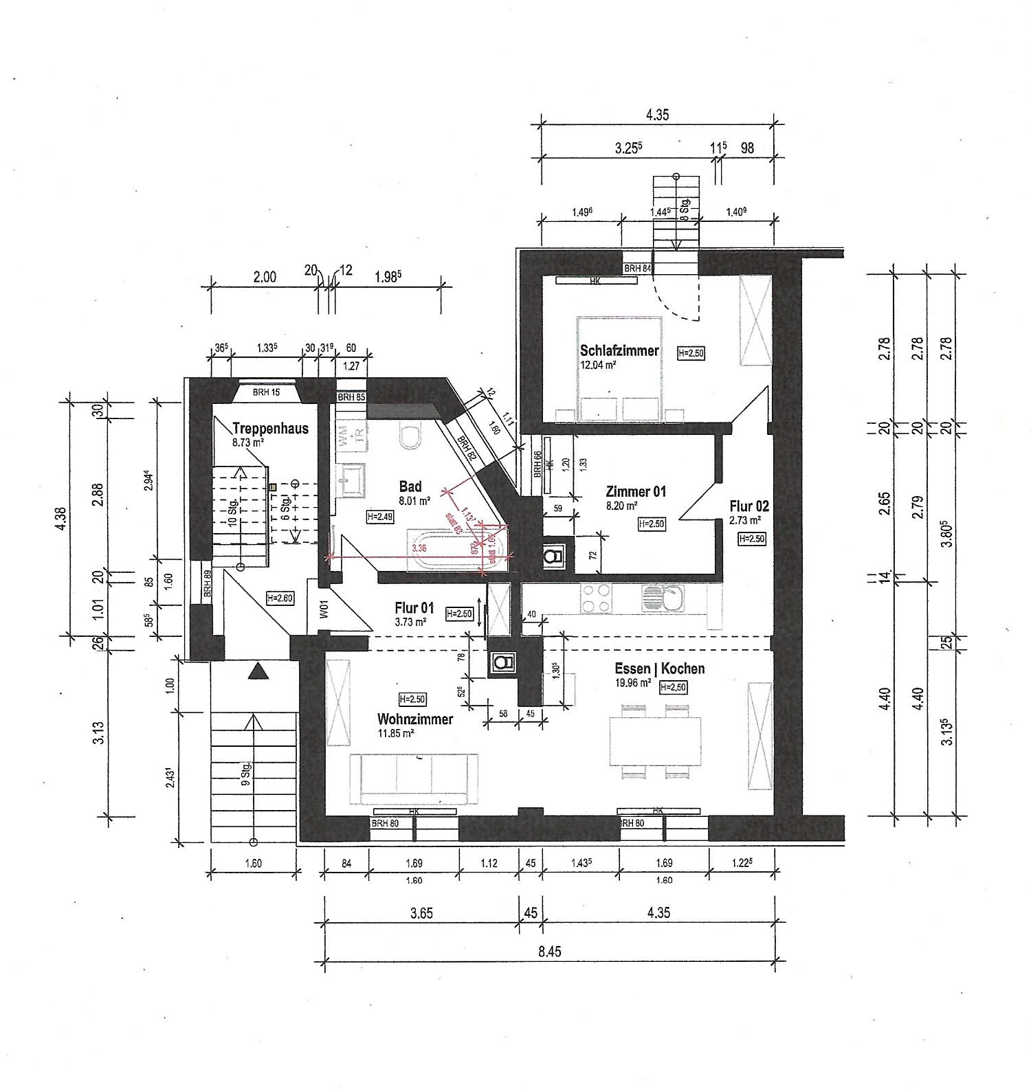
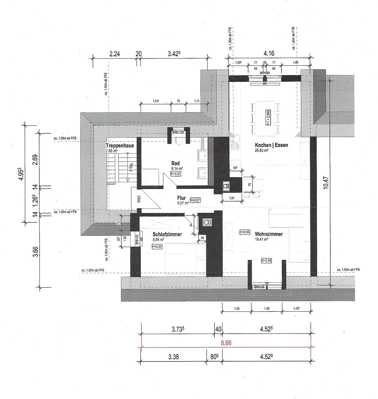
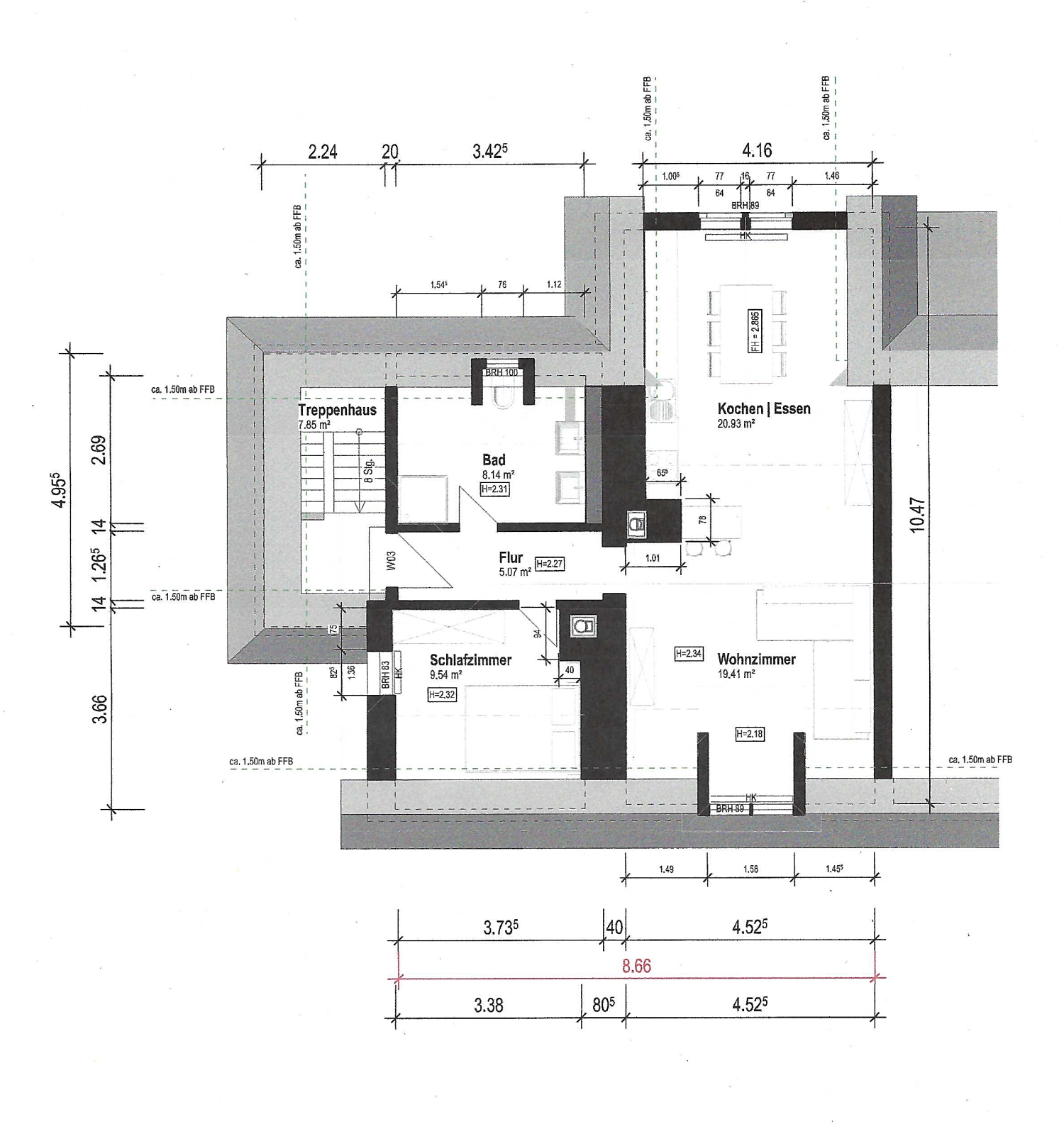
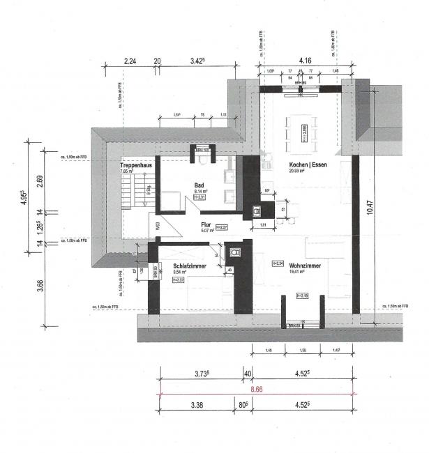
Grundriss Dachgeschoss
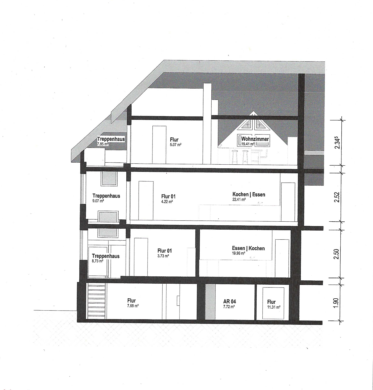
Schnittplan 1
Schnittplan 2
Modernisiertes Dreifamilienhaus, mit TOP RENDITE (ca. 6%) zentral gelegen in Radolfzell am Bodensee
Beschreibung

Bei diesem attraktiven Angebot handelt es sich um ein gepflegtes Dreifamilienhaus, bestehend aus drei separat geführten Wohneinheiten, mit eigenen Grundbüchern, welche sich vom Erdgeschoss über das Obergeschoss bis ins Dachgeschoss verteilen. Im Erd- sowie im Obergeschoss befindet sich jeweils eine 3,5 - 4-Zimmer-Wohnung, im Dachgeschoss wurde eine geräumige 2,5- 3-Zimmer-Wohnung realisiert. Zudem ist das Haus unterkellert und bietet daher ein Höchstmaß an möglicher Nutzfläche. Jeder Einheit ist ein PKW-Außenstellplatz direkt am Haus zugeordnet.

Wohnungen im Objekt:

Wohnung 1 im Erdgeschoss = 69,8 m²

Wohnung 2 im Obergeschoss = 75,16 m²

Wohnung 3 im Dachgeschoss = 71,87 m"

Immobilientyp:
Mehrfamilienhaus
Wohnfläche:
217m²
Ort:
Radolfzell
Baujahr:
1904
Stellplatz
3 Pkw-Aussenstellplätze
Kaufpreis:
640 000,- €
Lage

Das Haus befindet sich in zentraler Lage von Radolfzell, nahe Seemaxx und Innenstadt. Sämtliche Einkaufsmöglichkeiten für den täglichen Bedarf liegen in unmittelbarer Nähe. Die Anbindung an öffentliche Verkehrsmittel sowie die kurze Entfernung zum Autobahnanschluss A81 kommen gerade auch Pendlern, welche nach Konstanz oder Singen orientiert sind zu Gute. Das Bodenseeufer mit 
Promenade und Freibädern ist ebenso in kurzer Zeit erreichbar.

Ausstattung

Das Dreifamilienhaus präsentiert sich in einem sehr ordentlichen Allgemeinzustand und wurde in den vergangenen Jahren umfangreich modernisiert. Auch die Gas-Zentralheizung wurde im Jahr 2010 erneuert. 

Immobilientyp:
Mehrfamilienhaus
Kaufpreis:
640 000,- €
Wohnfläche:
217m²
Stellplatz
3 Pkw-Aussenstellplätze
Energieinformationen

Bedarfsausweis vorhanden.

Energieträger:
Erdgas
Heizungsart:
Gasheizung
Energieverbrauch/Energiebedarf:
146 kWh/m²a
Gültigkeit des Energieausweises:
10.10.2022 – 09.010.2032
Sonstiges

Die Gesamtgrundstückgröße 543 m² beschreibt das Gesamtgrundstück der beiden aneinander gebauten Häuser (Haselbrunnstr. 16 +18). Das zum Verkauf stehende Haus(Haselbrunnstr.18) hat einen Miteigentumsanteil von 588,66/1000 an dem Gesamtgrundstück. 

Die Jahreskaltmiete beträgt aktuell: 36.962,40 €.

Aktuell sind alle drei Wohnungen vermietet. Das Mietverhältnis für die Wohnung im Erdgeschoss wurde jedoch zur 
Mitte des Jahres gekündigt, so dass hier eine Neuvermietung, welche zu einer noch lukrativeren Miete führt, erfolgen kann. 

 

 

 

Provision

Bei erfolgreicher Vermittlung wird eine Käuferprovision in Höhe von 2 % der Kaufpreissumme zzgl. der gesetzlichen MwSt. von derzeit 19% an uns fällig.

kontakt

Michael Guske Immobilien
Höriweg 8
78479 Reichenau
 

Telefon: +49 7534 2719726
Mobil: +49 151 22970849
E-Mail: info@immobilien-guske.de

Eine Anfrage zu diesem Objekt senden

Wenn Sie Interesse an diesem Objekt haben, senden Sie uns hier Ihre Anfrage. Wir melden uns schnellstmöglich mit weiteren Informationen bei Ihnen.

Adresse